Translate My Website
| Bookmark and Share | + Bookmark Website
 
 
Connect on LinkedIN
 
Calculator Book an appointment Return To Featured Homes View Property Photos Virtual Tour Print Feature Sheet
Property Feature Sheet
Property Feature Sheet
 
 
 
Asking Price: $1,278,000

MLS®: W12488040
Intersection: Burnhamthorpe Rd & Burnelm Dr
Municipality: Toronto W08
Area/Region: Toronto
Address: 15 Burnelm Drive
Taxes: $5,701
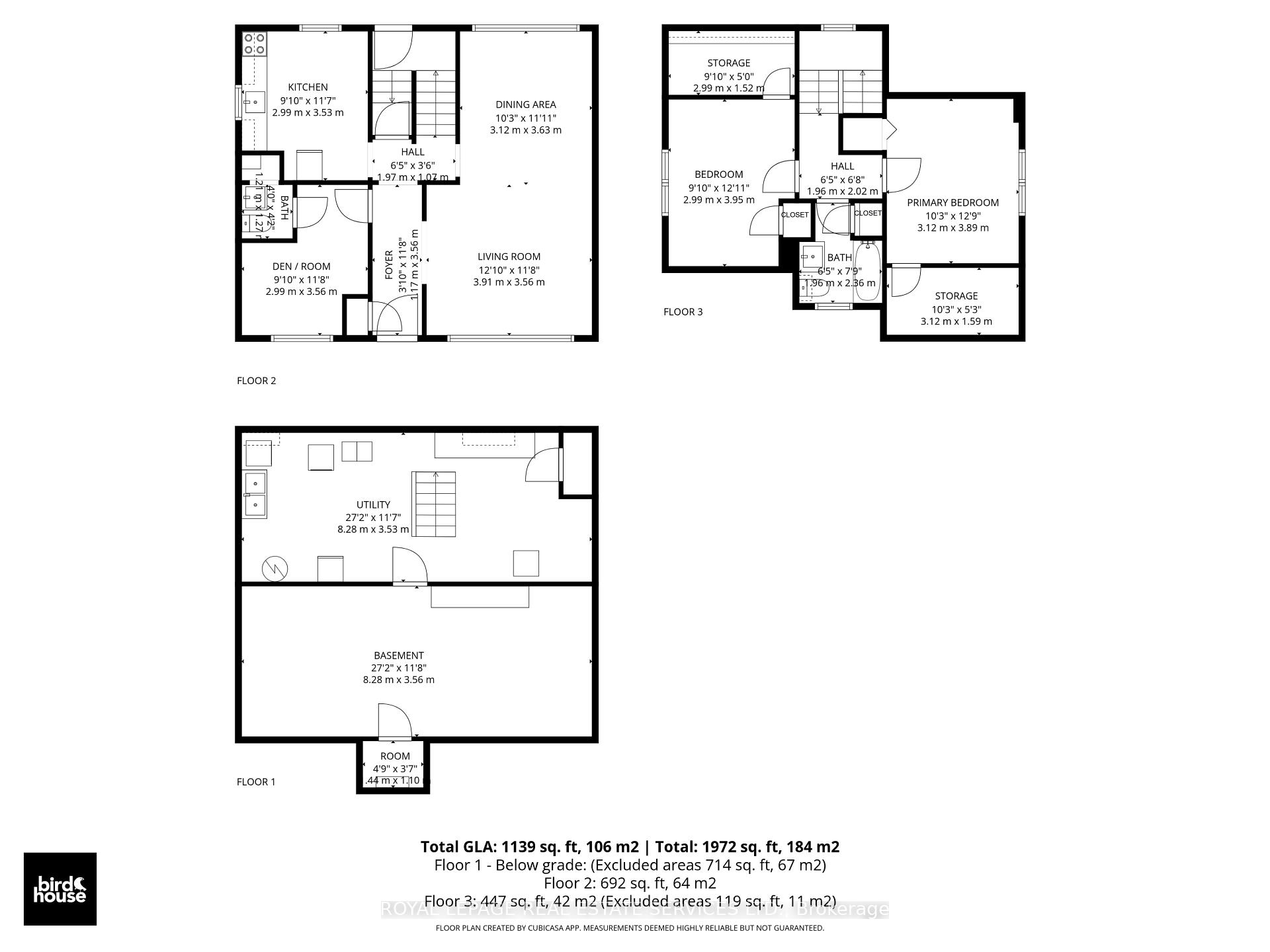
Sq. Footage: 1100-1500
Bedrooms: 3
Bathrooms: 2
Kitchens: 1
Laundry: Main Floor
Basement: Full
Fire Place: False
Description:
Welcome to 15 Burnelm Drive - a solid, exceptionally-maintained home in the same family for over 70+ years... nestled on a quiet street in one of Central Etobicoke's most sought-after neighbourhoods. Set on a generous 55' x 140.5' lot surrounded by mature trees and landscaping, this property offers endless potential for first-time buyers, renovators, or investors alike. Inside, the main floor features a bright and functional layout with a spacious living and dining area, an eat-in kitchen, and an abundance of natural light. Three bedrooms and two bathrooms provide comfortable family living. The lower level, with a separate back entrance, offers a full basement ready to be finished to your needs-home office, recreation area. Step outside to a pristine, private backyard that feels like your own retreat. Whether you choose to move in, renovate, or build new, this is a rare opportunity to move into a sought after family-friendly community-just steps from Wedgewood Park, the pool and skating rink, top-rated schools, library, transit, shopping, and the Kipling GO and subway hub.

More Photos:

Royal LePage Real Estate Services Ltd., Brokerage
3031 Bloor Street West - Toronto, Ontario, M8X 1C5
Office (416) 236-1871       Fax (416) 239-5493       Cell (416) 577-0117

Not intended to solicit properties currently listed for sale or individuals currently under contract with a brokerage.      Privacy Policy

The material provided in the pages of this website is for informational purposes only. Although the site owner and creators assume the information to be correct, and attempt to keep information in the pages of this website as current as possible, they do not warrant the accuracy or completeness of any information included in or linked to this page.
©1999-2025 CRWork.com®. All Rights Reserved.